LUXUS Stadtvillen | Jena

Zwätzen | Jena

Lage

233 m²

Wohnfläche

ab 570 m²

Grundstück

ab 1.330.000,- €

Kaufpreis

5 LUXUS STADTVILLEN JENA

Sie möchten alle modernen Annehmlichkeiten in einem atemberaubend schönen Neubau genießen! Dann sind die Stadtvillen perfekt für Sie!

Highlights

Die Stadtvillen bieten Ihnen eine exzellente Ausstattung.

Dazu zählen unter anderem:

  • 5 LUXUS NEUBAU STADTVILLEN
  • BEZUGSFERTIG
  • Wohnbereich im Obergeschoss
  • Kochen und Essen im Erdgeschoss
  • Anschlüsse für Kochinsel vorhanden
  • separates Wohnen + Kochen | Schlafen | Bad im EG
  • 3 weitere Schlafzimmer
  • großzügiges Master Bad mit Wanne + Dusche + WC
  • separates Gäste-WC
  • Balkon im Obergeschoss
  • Fußbodenheizung | elektrische Raffstores
  • Echtholzparkett Eiche
  • Vliestapete
  • Innen- und Außenbeleuchtung
  • Smart-Home System von Loxone
  • Terrasse auf der Gartenseite
  • Garage + Carport + Außenstellplatz uvm.
  • 2,85 m Raumhöhe
  • 233 m² Wohnfläche
  • Grundstücksgrößen von 570 bis 934 m²
  • inklusive hochwertiger Begrünung
  • KfW-40 Standard + QNG
  • Endenergiebedarf: 7,66 kWh/m²a
  • Energieeffizienzklasse: A+

233 m²

Wohnfläche

ADP-0124

Objekt-ID

ab 1.330.000,- €

Kaufpreis

Exposé

Anfrage

LAGE

Die Stadtvillen liegen in wunderschöner Lage am Gutshof Zwätzen und bietet Ihnen einen ruhigen Rückzugsort zum Entspannen!

Die Stadtvillen Jena haben ihre Heimat im beliebten Stadtteil Zwätzen nördlich vom Stadtzentrum mit einer wundervollen Lage am Gutshof.

Jena präsentiert sich als eine detailreiche und lebendige Umgebung, die das tägliche Leben der Bewohner und Besucher prägt. Die Stadt ist durchzogen von charakteristischen Vierteln, jeder mit seinem eigenen Charme und individuellen Angeboten. In der historischen Altstadt finden sich malerische Gassen, gesäumt von traditionellen Fachwerkhäusern, Cafés und kleinen Geschäften.

Die Autobahnen A4 und A9 verlaufen in unmittelbarer Nähe zu Jena und bieten eine schnelle Anbindung an andere Städte in Deutschland. Die gut ausgebauten Straßen innerhalb der Stadt ermöglichen eine reibungslose Fortbewegung und erleichtern den Verkehrsfluss.

Für Naturliebhaber bietet Jena grüne Oasen wie den Stadtpark oder den Hausberg. Diese Orte bieten Erholungsmöglichkeiten, Sportaktivitäten und beeindruckende Aussichten auf die Stadt.

233 m²

Wohnfläche

ADP-0124

Objekt-ID

ab 1.330.000,- €

Kaufpreis

Exposé

Anfrage

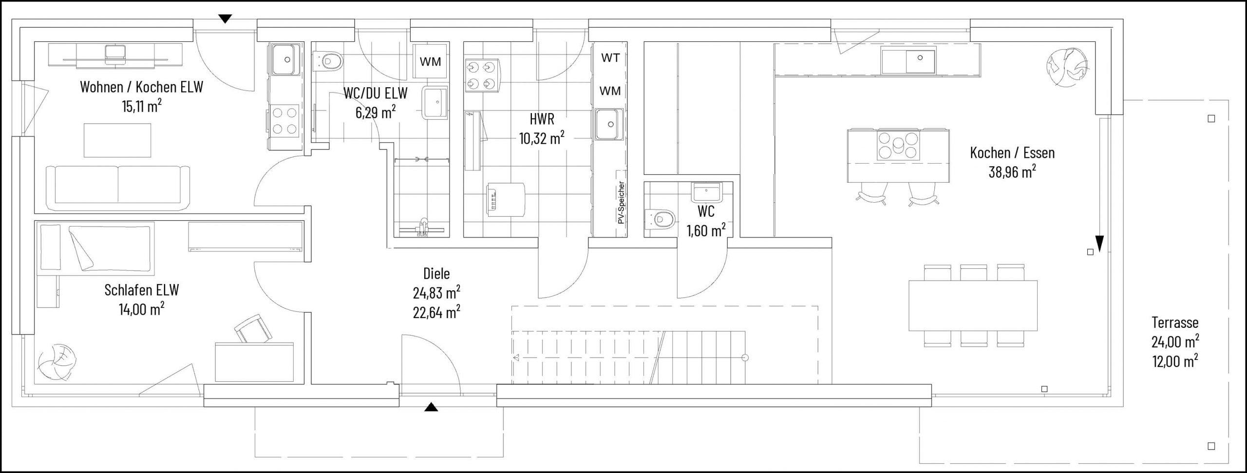
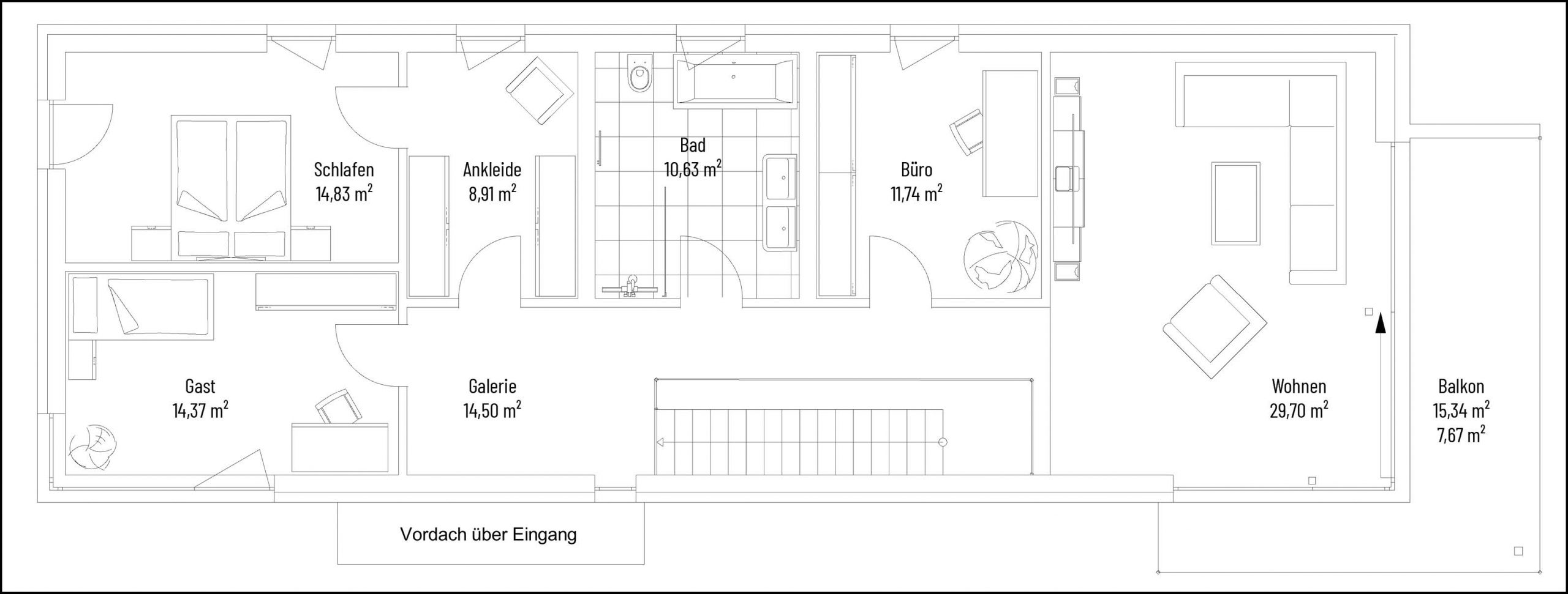
GRUNDRISSE

Erleben Sie Ihr neues Zuhause mit seiner großzügigen Aufteilung und den Möglichkeiten, Wohnen neu zu definieren!

ANFRAGE

Haben wir Ihr Interesse geweckt?
Kontaktieren Sie uns!

ANDRÉ DUFFT | AILINA KALAČ

Geschäftsführer | Premium Advisor

Wir sind ihre persönlichen Ansprechpartner zu den Luxus Stadtvillen Jena!

    Anrede:


    Mit dem Absenden des Kontaktformulars erklären Sie sich damit einverstanden, dass Ihre Daten gespeichert und bearbeitet werden. Informationen und Widerrufshinweise entnehmen Sie unserer Datenschutzerklärung.

    233 m²

    Wohnfläche

    ADP-0124

    Objekt-ID

    ab 1.330.000,- €

    Kaufpreis

    Exposé

    Anfrage

    COURTAGEPASSUS

    Der Maklervertrag mit uns kommt durch schriftliche Vereinbarung oder durch die Inanspruchnahme unserer Maklertätigkeit auf Basis des Exposés und seiner Bedingungen zustande. Sollte das von uns nachgewiesene Objekt mit den hier aufgeführten Informationen bereits bekannt sein, teilen Sie uns dies bitte inkl. Nachweis unverzüglich mit.

    HINWEISE

    Alle Angaben sind ohne Gewähr und basieren ausschließlich auf Informationen, die uns von unserem Auftraggeber übermittelt wurden. Wir übernehmen keine Gewähr für die Vollständigkeit, Richtigkeit und Aktualität dieser Angaben. Irrtum und Zwischenverkauf sind vorbehalten. Die ADIMMO GmbH ist dazu berechtigt, mit dem Verkäufer eine Provision zu vereinbaren. Auf Wunsch stehen wir Ihnen mit weiteren Informationen zum Objekt und zum Eigentümer gerne zur Verfügung. Die Besichtigung kann jederzeit nach Vereinbarung erfolgen. An dieser Stelle weisen wir noch einmal ausdrücklich auf unsere Allgemeinen Geschäftsbedingungen hin. Wir verarbeiten ihre personenbezogenen Daten im Rahmen des mit Ihnen bestehenden Vertragsverhältnisses. Weitere Informationen über die Datenverarbeitung entnehmen Sie bitte unter https://www.adimmo.net.

    WEITERE IMMOBILIENANGEBOTE

    STADTVILLEN | Jena

    Reihenhäuser | Berlin

    Studentenheim | Weimar

    Luxus Penthouse | Leipzig

    ETW Friedensberg | Jena

    ETW Hausberg | Jena

    ETW Hausberg 2 | Jena

    BH 28 | Erfurt

    Pflegeheim AKZEPTUS | Schkeuditz

    Residenz Lindenhof | Vieselbach

    NONNENRAIN 13 | Erfurt

    Garda Resort Village | Italien

    Chalet | Neukirchen am Großvenediger

    MAGDEBURGER 40 | Erfurt

    Villa Fuchsturm | Jena

    Villa | Langenstriegis

    Villa Weinberg | Jena

    Altersgerechtes Wohnen | Bad Berka

    Paul 20 | Erfurt

    Hagentor | Nordhausen

    BÜROHAUS H89 | Erfurt

    Erfahren Sie als Erster von neuen Immobilienangeboten und melden sich für unseren NEWSLETTER an!